Operação Urbana Água Espraiada

Casa 2 em 1

SESC Santo Amaro

Programa Habitacional Paraisópolis

Escola Municipal de Astrofísica

Teatro do Colégio Santa Cruz

Escola de Yoga

Teatro Oficina

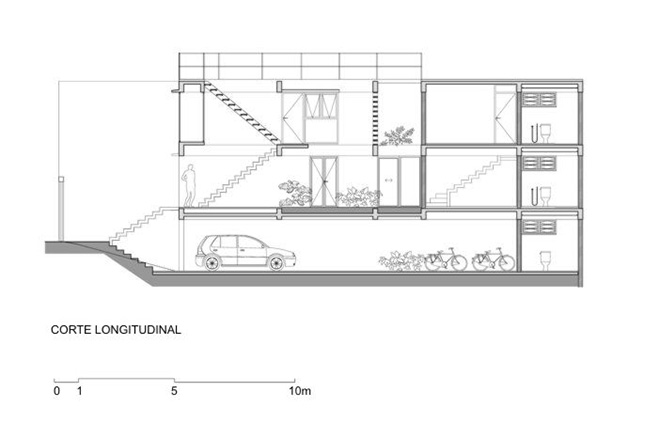
Residência Vila Madalena

+ projetos

equipe

|

contato

premiações