< Imagem Anterior
> Próxima Imagem
DESCRITIVO
FICHA TÉCNICA
Operação Urbana Água Espraiada
Casa 2 em 1
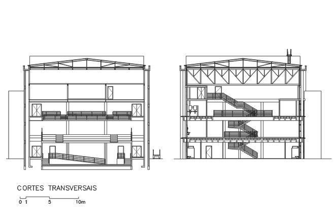
SESC Santo Amaro
Programa Habitacional Paraisópolis
Escola Municipal de Astrofísica
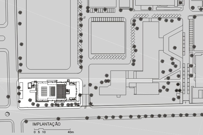
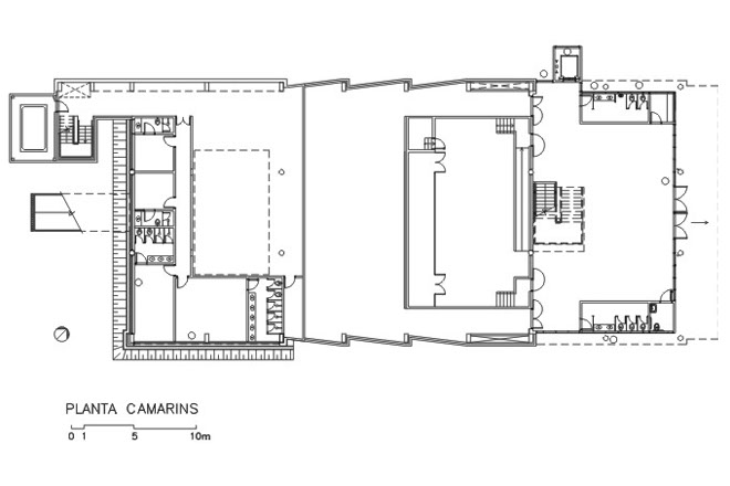
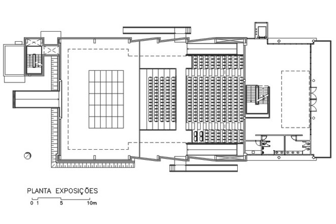
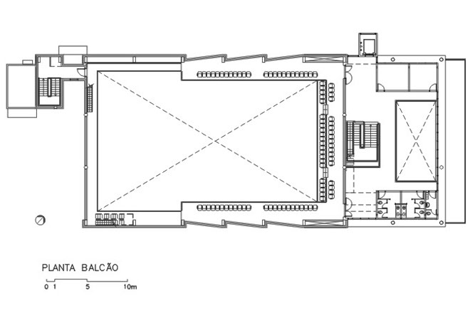
Teatro do Colégio Santa Cruz
Escola de Yoga
Teatro Oficina
Residência Vila Madalena
+ projetos
equipe
|
contato
premiações